Listing Tools

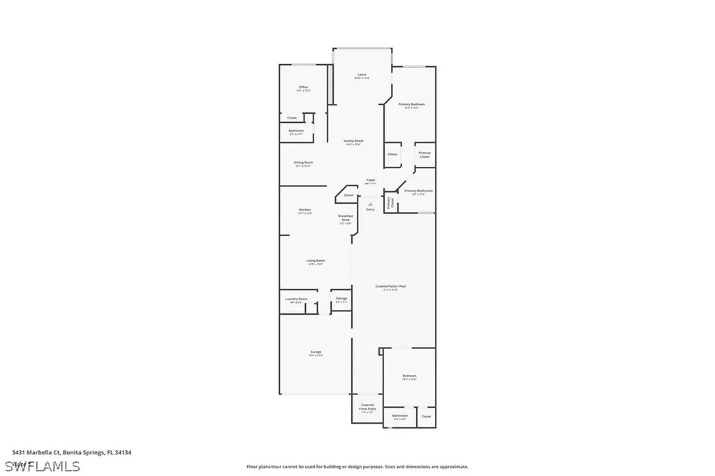
This beautifully designed single-story, three-bedroom, three-bath villa is ideally located in Pelican Landing and offers a thoughtfully designed layout that blends privacy, comfort, and functionality. Each bedroom is an en-suite with its own full bath, including a highly desirable guest casita featuring a walk-in closet and private bath-perfect for visitors or extended stays. At the heart of the home, a private courtyard with a pool creates an inviting indoor-outdoor retreat ideal for relaxing or entertaining. Inside, the home offers multiple living spaces, including a formal living room, great room, glass-enclosed Florida room, and a formal dining room, providing flexibility for everyday living and hosting guests. The laundry room features newer cabinetry, adding both style and storage. The two-car garage includes epoxy flooring, while the extended and widened driveway comfortably accommodates two vehicles side-by-side. The exterior has been enhanced with additional landscaping and shrubbery, delivering excellent curb appeal and a welcoming arrival. For peace of mind, the home is well protected with remote-controlled hurricane shutters, and select interior windows are outfitted with plantation shutters, adding both charm and functionality. Residents of Pelican Landing enjoy exclusive access to a private beach park, along with a sailing center, kayak and canoe launch, tennis and pickleball courts, bocce, and a staffed fitness facility. Optional membership at The Nest Golf Club offers access to two championship 18-hole golf courses, completing the exceptional lifestyle this community is known for.

Property Details

Interior Features

Exterior Features

Utilities and Appliances

Community

Map Location

Listed by Marianne Fechter of John R. Wood Properties

Based on information submitted to Gulf Coast as of March 5, 2026 . All data is obtained from various sources and has not been, and will not be, verified by broker or Gulf Coast.  All information should be independently reviewed and verified for accuracy. Properties may or may not be listed by the office/agent presenting the information. NOTICE: Many homes contain recording devices, and buyers should be aware they may be recorded during a showing.

Hi there! How can we help you?

Contact us using the form below or give us a call.

Send Us A Message:

I agree to be contacted by Garren Grup via call, email, and text for real estate services. To opt out, you can reply ‘stop’ at any time or reply ‘help’ for assistance. You can also click the unsubscribe link in the emails. Message and data rates may apply. Message frequency may vary. Privacy Policy.

Do not fill in this field:

This site is protected by reCAPTCHA and the Google Privacy Policy and Terms of Service apply.

Hi there! How can we help you?

Contact us using the form below or give us a call.

Send Us A Message:

Do not fill in this field:

This site is protected by reCAPTCHA and the Google Privacy Policy and Terms of Service apply.

Hi there! How can we help you?

Contact us using the form below or give us a call.

Send Us A Message:

Do not fill in this field:

This site is protected by reCAPTCHA and the Google Privacy Policy and Terms of Service apply.

Do not fill in this field:

This site is protected by reCAPTCHA and the Google Privacy Policy and Terms of Service apply.

Do not fill in this field:

This site is protected by reCAPTCHA and the Google Privacy Policy and Terms of Service apply.

Do not fill in this field:

This site is protected by reCAPTCHA and the Google Privacy Policy and Terms of Service apply.

$

Do not fill in this field:

This site is protected by reCAPTCHA and the Google Privacy Policy and Terms of Service apply.