Listing Tools

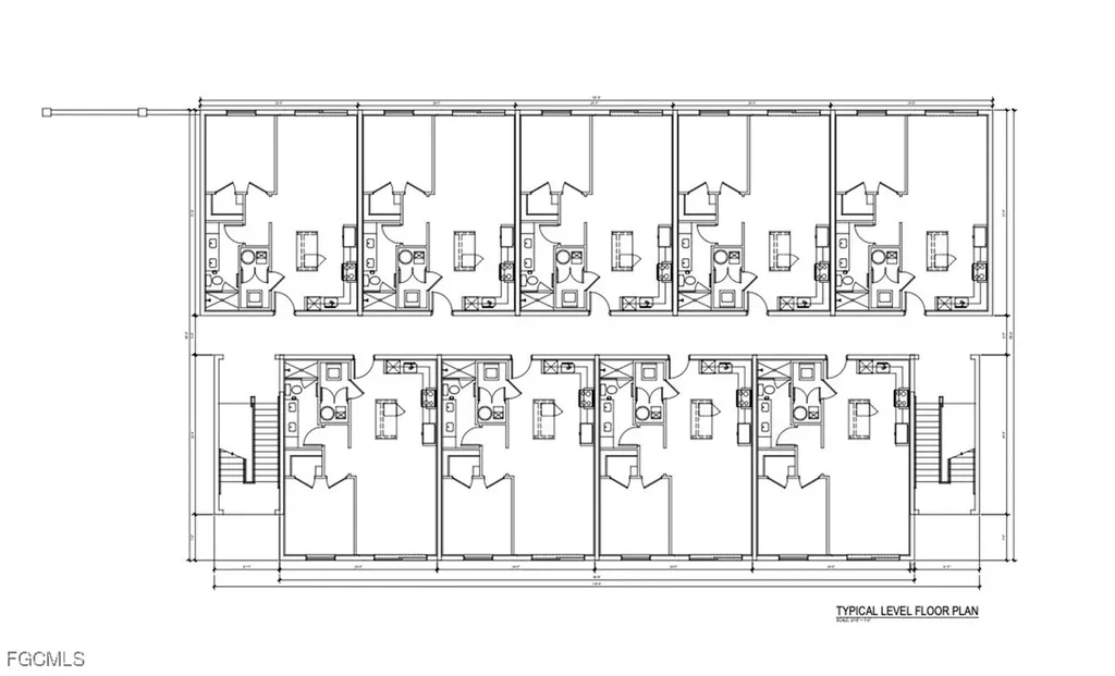
This 0.83-acre downtown Fort Myers site is a prime opportunity for a 27-unit residential development, complete with preliminary design plans, survey, and a Traffic Impact Statement. Current plans are for a 3 story building consisting of 27 one bedroom units. Strategically located near where the City of Fort Myers intends to develop the Hendry St Pedestrian Mall which will connect the John Yarbrough Linear Park via the Midtown Connection to the downtown area. Downtown Fort Myers has the perfect blend of old town charm and new development. Close to the Caloosahatchee River, marinas, breweries, library, Sidney & Berne Davis Arts Center, theaters, the Burroughs Home, Dean Park area, shopping, restaurants, nightlife, festivals including monthly Music Walk and Art Walk, and everything else that downtown living has to offer. This vibrant location offers proximity to amenities, airports, I-75, public transportation, and a thriving downtown atmosphere, making it a highly desirable investment for development.

Property Details

Exterior Features

Community

Map Location

Listed by Noelle Tietz of Realty Rents and Sales,LLC (239-225-1234)

Based on information submitted to Gulf Coast as of March 9, 2026 . All data is obtained from various sources and has not been, and will not be, verified by broker or Gulf Coast.  All information should be independently reviewed and verified for accuracy. Properties may or may not be listed by the office/agent presenting the information. NOTICE: Many homes contain recording devices, and buyers should be aware they may be recorded during a showing.

Hi there! How can we help you?

Contact us using the form below or give us a call.

Send Us A Message:

I agree to be contacted by Garren Grup via call, email, and text for real estate services. To opt out, you can reply ‘stop’ at any time or reply ‘help’ for assistance. You can also click the unsubscribe link in the emails. Message and data rates may apply. Message frequency may vary. Privacy Policy.

Do not fill in this field:

This site is protected by reCAPTCHA and the Google Privacy Policy and Terms of Service apply.

Hi there! How can we help you?

Contact us using the form below or give us a call.

Send Us A Message:

Do not fill in this field:

This site is protected by reCAPTCHA and the Google Privacy Policy and Terms of Service apply.

Hi there! How can we help you?

Contact us using the form below or give us a call.

Send Us A Message:

Do not fill in this field:

This site is protected by reCAPTCHA and the Google Privacy Policy and Terms of Service apply.

Do not fill in this field:

This site is protected by reCAPTCHA and the Google Privacy Policy and Terms of Service apply.

Do not fill in this field:

This site is protected by reCAPTCHA and the Google Privacy Policy and Terms of Service apply.

Do not fill in this field:

This site is protected by reCAPTCHA and the Google Privacy Policy and Terms of Service apply.

$

Do not fill in this field:

This site is protected by reCAPTCHA and the Google Privacy Policy and Terms of Service apply.